Урало-Сибирская профильная компания (УСПК)

IF 50 SSG Фасадные окна

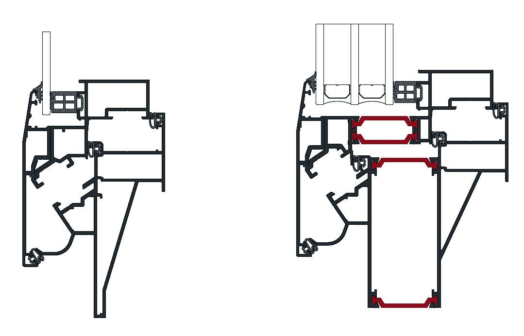
Серия фасадных окон от INICIAL предназначена для изготовления открывающихся элементов (окон и люков), интегрируемых в фасадное остекление ригель-ригельного и стоечно-ригельного типа семейства INICIAL IF 50. Все створки серии открываются наружу. Створки могут быть выполнены в структурном исполнении. Оно наиболее востребовано в витражах, создающих иллюзию сплошного остекления, без разделителей.
• Верхнеподвесные либо параллельно-отставные фасадные окна.
• Классическое или структурное исполнение.
• «Холодные» (для неотапливаемых помещений) или «теплые» створки (для фасадов с повышенными требованиями по теплоизоляции).
• Интеграция полуавтоматических и автоматических приводов открывания.
• Наличие «Европаза», позволяющего использовать фурнитуру большинства производителей.

IF 50 SSG Вентиляционные люки

Вентиляционные люки IF 50 SSG от INICIAL служат для вентиляции и дымоудаления. Серия имеет расширенные архитектурные возможности: люки легко интегрируются в зимние сады, зенитные фонари и светопрозрачные крыши сложных форм.

Вентиляционные люки имеют два варианта исполнения: «теплое» и «холодное» (для неотапливаемых помещений). Люки открываются наружу помещения, могут устанавливаться как в вертикальных, так и в наклонных конструкциях.

Благодаря относительно небольшим габаритам сечения люка он меньше выделяется на фасаде. Это повышает эстетическую привлекательность фасада, способствует лучшему влагоотводу.

• Классическое или структурное исполнеие.
• «Холодные» (для неотапливаемых помещений) или «теплые» створки (для фасадов с повышенными требованиями по теплоизоляции).
• Предусмотрено изготовление люков трапециевидных форм.
• Возможна установка люков в угловые зоны светопрозрачных конструкций.
• Интеграция полуавтоматических и автоматических приводов открывания.
• Наличие стандартного «Европаза», позволяющего использовать фурнитуру большинства производителей.