Урало-Сибирская профильная компания (УСПК)

INICIAL IF 50 WC

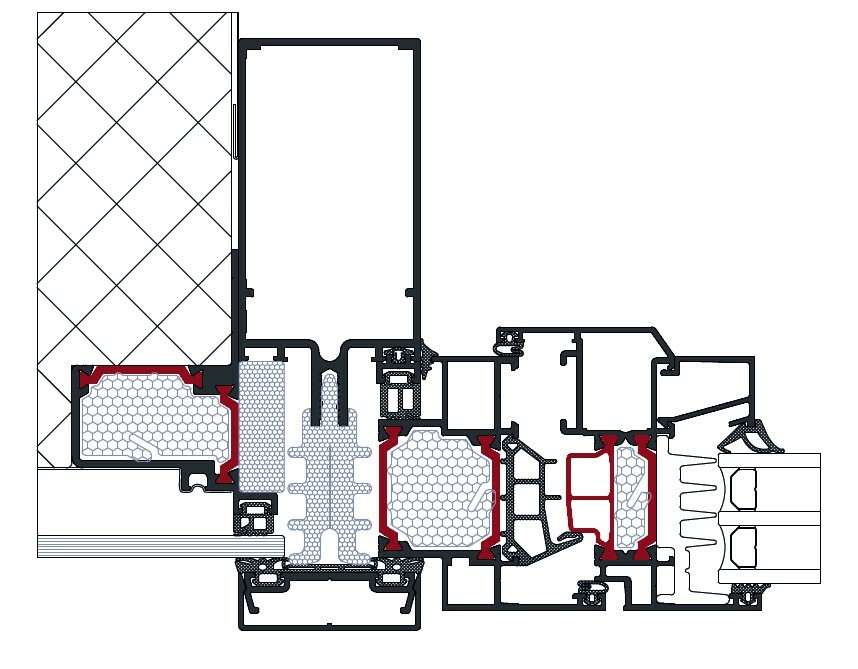
Стоечно-ригельная фасадная система «Тепло-холод» INICIAL IF 50 WC позволяет реализовать фасад с теплыми решениями в оконном проеме и холодной частью («фальш- витраж») на глухой стене.

Оконные проёмы, неразличимые в стеклянном фасаде, отделены от холодной области и выполняют все функции стандартных теплых окон. В холодной части фасад выполняет только декоративные функции.

Конструкция из данной системы имеет отличные теплотехнические характеристики, нет конденсата в проблемных зонах перехода из холодной части в теплую.

• Структурное остекление.
• Организация внутренних и наружных углов поворота остекления.
• Интеграция различных видов окон: распашных, верхнеподвесных, параллельно сдвижных.
• Створки в классическом или структурном исполнении.
• Легкая интеграция вентиляционных створок и люков, внешних ограждений со стеклом-триплекс.
• Индивидуальные объектные решения.
Примеры объектов с применением INICIAL IF 50 WC:
ЖК Адмиральский, Екатеринбург
IF 50 WC
ЖК Мос-Анжелес, Москва
IF 50 WC
ЖК Новые ключи, Сургут
IF 50 WC
Общежитие ЮУрГУ, Челябинск
IF 50 WC